Sie sind hier: Startseite > Bauen & Wirtschaft > Gewerbeimmobilien & Gewerbeflächen > Immobiliendatenbank
pfeil2

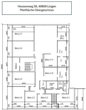
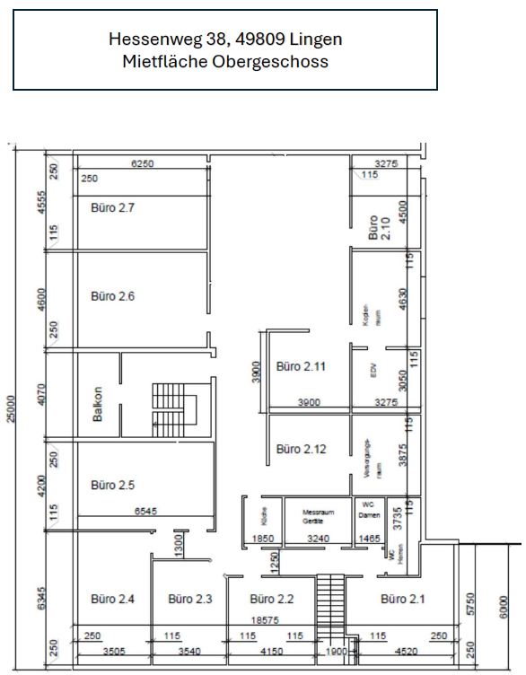
Hessenweg 38

Objektbeschreibung

Bürofläche auf zwei Ebenen mit Werk-/Laborfläche zu sofort zu vermieten 

Zur Vermietung steht ein Bürokomplex in zwei Ebenen mit gesamt 569 m² und einer Werkstatt-/Laborfläche von weiteren 187 m². Dieses Mietobjekt befindet sich in Lingen. Die Flächen eignen sich hervorragend für verschiedene Nutzungen wie Büro, Werk-/Labor- und Versuchsstätte, Studio, Atelier usw.

Ausstattung:
- Gesamtfläche: ca. 757 m²
- Oberbeläge im Bürobereich: Teppich und Fliesen
- Wände KS und GK, weiß gestrichen
- EDV-Netzwerk in allen Büroräumen vorhanden
- Beleuchtung, teils LED
- Obergeschoss teilrenoviert - Wände, Boden, Decken
- helle, ansprechende Räume
- behindertengerechtes Herren-WC im Erdgeschoss
- flexible Gestaltungsmöglichkeiten
- wunderschöne Gartenanlage mit Teich
- Parkmöglichkeiten in ausreichender Anzahl, Stellplätze im Bereich des Gebäudes vorhanden

Lage:
Die Zuwegung zum Gebäude/Parkplatz erfolgt über den Hessenweg. Die angrenzende Halle sowie der gesamte Kellerbereich sind anderweitig vermietet.

Bei Interesse einfach melden. Bitte teilen Sie uns kurz bei Ihrer Anfrage mit, wer Sie sind und wie Sie das Gebäude nutzen möchten. Anfrage bitte per mail an Siegfried Zech: zech@zechgmbh.de.

Eckdaten

Objektart(en) Büro- / Praxisräume
Kategorie(n) Miete
Etage(n) Erdgeschoss, Obergeschoss
Nutzfläche 757m²
Frei ab sofort
Preis auf Anfrage
Anbieter

Siegfried Zech Lingen GmbH & Co. KG

Herr
Siegfried Zech
Frerener Straße 8
49809 Lingen (Ems)

Telefonnummer 0176 11 55 23 00
Email-Adresse zech@zechgmbh.de
Makler Nein



Eindrücke und Fotos



Lage