Sie sind hier: Startseite > Bauen & Wirtschaft > Gewerbeimmobilien & Gewerbeflächen > Immobiliendatenbank
pfeil2

Georgstraße 59

Objektbeschreibung

Gewerbefläche in modernem Neubau

Willkommen in Ihrem neuen Gewerbestandort!

An der Georgstraße 59 in 49808 Lingen entsteht derzeit ein attraktiver Neubaukomplex, in dem Sie eine vielseitig nutzbare Gewerbefläche langfristig anmieten können. Die Fertigstellung ist für Anfang 2026 geplant. Da sich das Projekt noch in der Bauphase befindet, haben Sie die einmalige Chance, bei der Gestaltung und Raumaufteilung Ihre eigenen Ideen einzubringen.

Besonderheiten: Erstbezug, individuelle Raumaufteilung möglich Nutzen Sie diese seltene Gelegenheit, Ihre Gewerbefläche von Grund auf so zu gestalten, dass sie perfekt zu Ihrem Unternehmen passt.

Wir stehen Ihnen gerne für weitere Informationen, Fragen zur Ausstattung oder einen persönlichen Beratungstermin zur Verfügung. Treten Sie jetzt mit uns in Kontakt, um sich diese attraktive Mietfläche in einem modernen Neubau an bester Adresse zu sichern!

 

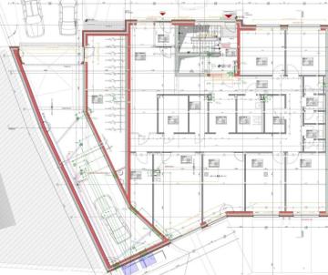
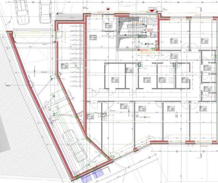
Ein Blick auf den Grundriss und die Visualisierung verdeutlicht die moderne Architektur des Gebäudekomplexes. Die einzelnen Baukörper mit ihrer ansprechenden Klinker-Optik und den großzügigen Fensterflächen sorgen für ein zeitgemäßes Erscheinungsbild. Im Erdgeschoss bieten bodentiefe Fenster eine optimale Belichtung und schaffen ein einladendes Ambiente.

Flexible Raumaufteilung: Der gezeigte Grundriss ist als Vorschlag zu verstehen und kann nach Ihren Wünschen angepasst werden. Ob Großraumbüro, Einzelbüros, Empfangsbereich oder Besprechungsräume – Sie entscheiden über die Aufteilung.

Helle und freundliche Räume: Durch große Fensterfronten entsteht eine lichtdurchflutete Arbeitsumgebung.

Moderne Gebäudetechnik: Als Neubau wird das Objekt hohen energetischen und technischen Standards entsprechen (z. B. Wärmedämmung, Heiz- und Lüftungstechnik).

Barrierearmer Zugang: Ein ebenerdiger Eingangsbereich sowie Aufzugsanlagen (im Gesamtgebäude) sind vorgesehen.

Gestaltungsspielraum: Nutzen Sie die frühe Bauphase, um Oberflächen, Ausstattungselemente und technische Details nach Ihren Vorstellungen mitzubestimmen.

Eckdaten

Objektart(en) Büro- / Praxisräume
Kategorie(n) Miete
Etage(n) Erdgeschoss, Barrierefrei
Nutzfläche 277m²
Frei ab 01.04.2026
Preis 3.878 € Kaltmiete
Anbieter

Langer ProjektPlus GmbH & Co. KG

Herr Johannes Kruse
Darmer Hafenstraße 1
49808 Lingen (Ems)

Telefonnummer 0591 80068-0
Email-Adresse jk@langer-pp.de
Website www.langer-pp.de
Makler Ja



Eindrücke und Fotos



Lage