Sie sind hier: Startseite > Bauen & Wirtschaft > Gewerbeimmobilien & Gewerbeflächen > Immobiliendatenbank
pfeil2

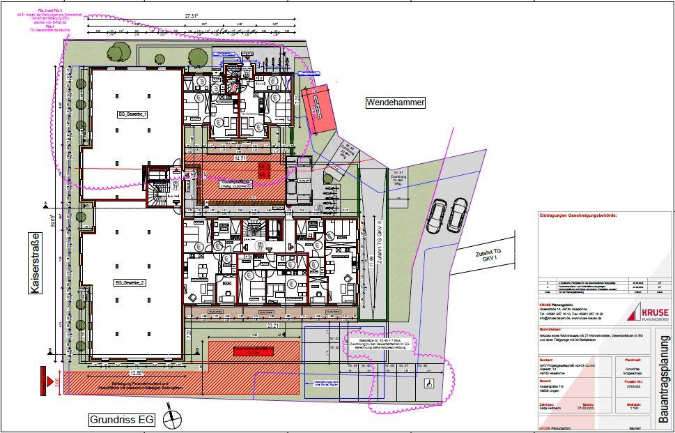
Kaiserstraße 7-9

Objektbeschreibung

In zentraler 1A-Lage entsteht mitten im Herzen von Lingen (Ems) ein attraktives Wohn- und Geschäftshaus. Der Bahnhof und der Campus der Hochschule Osnabrück befinden sich in direkter Nachbarschaft, die Lingener Innenstadt ist binnen weniger Minuten fußläufig zu erreichen.

Im Erdgeschoss befinden sich zwei großzügige Gewerbeeinheiten mit einer Ladenfläche von ca. 190 und 250 m². Bei Bedarf können beide Einheiten auch zu einer großen Gewerbefläche zusammengefasst werden. Der Innenausbau erfolgt in Absprache mit den zukünftigen Erwerbern oder Mietern. Die notwendigen Einstellplätze stehen sowohl in der eigenen Tiefgarage als auch auf oberirdischen Stellplätzen zur Verfügung.

Nähere Informationen entnehmen Sie bitte den untenstehenden Eckdaten. Bei Rückfragen stehen die Wirtschaftsförderung der Stadt Lingen (Ems) sowie das Planungsbüro Kruse gerne zur Verfügung.

Eckdaten

Objektart(en) Büro- / Praxisräume
Kategorie(n) Kauf, Miete
Etage(n) Erdgeschoss
Nutzfläche 190m² bis 450m²
Preis auf Anfrage
Anbieter

GKV Projektgesellschaft mbH & Co. Kg

Frau
Daniela Germing

Telefonnummer 05961/95718291 Mobil: 0162-4236387
Email-Adresse Germingd@gkv-haseluenne.de
Makler Ja



Eindrücke und Fotos



Lage