Sie sind hier: Startseite > Bauen & Wirtschaft > Gewerbeimmobilien & Gewerbeflächen > Immobiliendatenbank
pfeil2

Carl-Zeiss-Straße 4

Objektbeschreibung

Die zur Miete angebotene Gewerbehalle befindet sich in einer verkehrsgünstigen Lage im Gewerbegebiet von Lingen-Baccum. Die unmittelbare Nähe zu den Bundesstraßen 70, B213 und B214 sorgt für eine gute Anbindung an die Autobahnanschlüsse A30 und A31. Dadurch ist die Gewerbefläche sowohl für Anlieferungen als auch für Kunden und Geschäftspartner problemlos und einfach erreichbar.

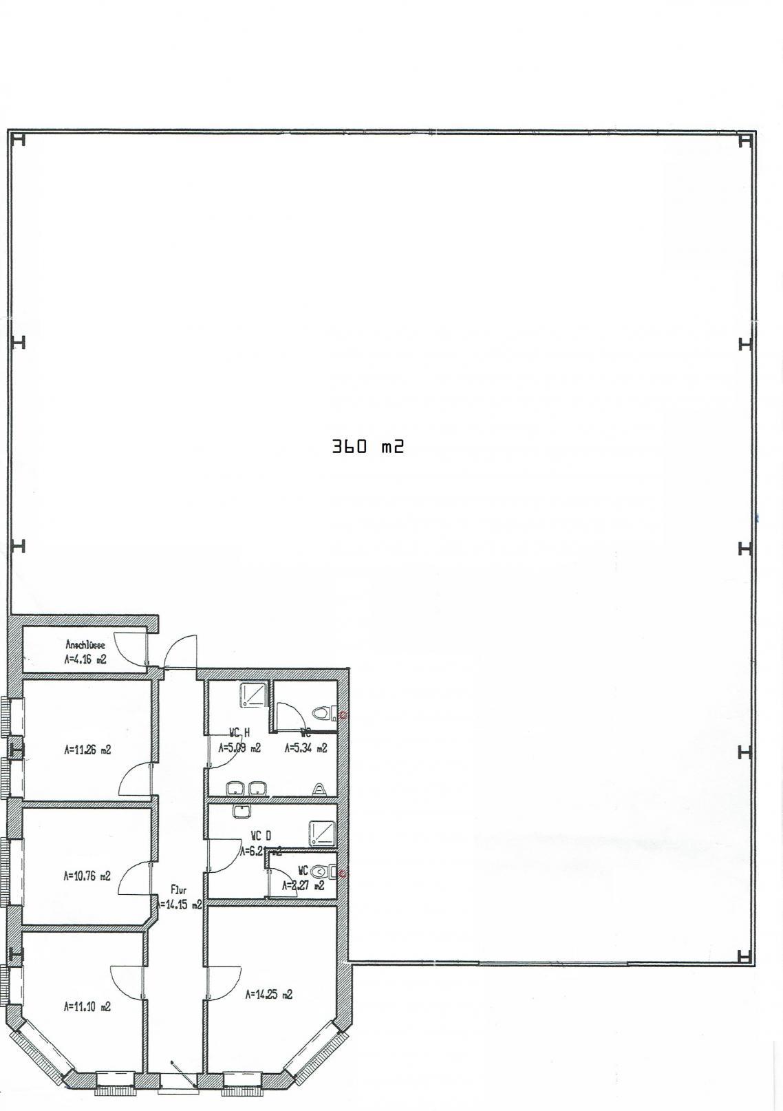
Die Gewerbehalle erstreckt sich über eine Gesamthallenfläche von 360 m². Während weitere 70 Quadratmeter als Büroflächen genutzt werden können.

Hallenfläche: Der gradlinige Grundriss ermöglicht eine optimale Nutzung der rund 360 m² Hallenfläche. Darüber hinaus ist die Nutzung von Hochregallagern durch die ausreichende Hallenhöhe ohne weiteres möglich und bietet jede Menge weiterer Lagermöglichkeiten.
Zudem sind die Büroflächen mit einer tragfähigen Dachkonstruktion erbaut und können individuell als zusätzlicher Lagerplatz oder Empore genutzt werden.

Büroflächen: Die drei Büroräume können vielfältig gestaltet und auch als Besucher- oder Besprechungsräume genutzt werden.

Des Weiteren stehen Ihnen getrennte WCs für Damen und Herren mit Duschen und ein Aufenthaltsraum mit Küchenanschluss zur Verfügung.
Die Gewerbehalle ist mit einem großen Sektionaltor ausgestattet, das eine bequeme Anlieferung von Waren und Materialien ermöglicht und somit Potenzial für vielseitige Nutzungsmöglichkeiten unterstützt. Durch 2 große Fensterflächen wird die Halle mit viel Tageslicht durchflutet.
Vervollständigt wird diese schöne Gewerbeeinheit durch vor, neben und hinter der Halle zur Verfügung stehende befestigte (gepflasterte) Freifläche. Die Freifläche ermöglicht weiteren Stellplatz zur flexiblen Nutzung.

Gerne besprechen wir Ihre Vorstellung zur gewerblichen Nutzung im Rahmen eines persönlichen Gesprächs.

Ausstattung Hallenfläche: 360 m² - Halle isoliert 80mm
Ausstattung Bürofläche: 70 m² - drei Büros - moderner Glasfaseranschluss FTTH - moderne Netzwerkstruktur in allen Räumen - WC für Damen und Herren mit Duschen - Aufenthaltsraum mit Küchenanschluss - Anlieferung möglich - Belastbarer Betonboden - ein großes Sektionaltor - Starkstromanschlüsse - Überwachungskameras - Gelände komplett Umzäunt mit Doppelstabmattenzaun

Lage: Die Immobilie befindet sich verkehrsgünstig im Gewerbegebiet Lingen-Baccum.

Sonstiges: Ich bitte um Ihr Verständnis dafür, dass ich Ihre Anfrage nur bearbeiten kann, wenn ich folgende Angaben von Ihnen habe: Firmenname, Telefonnummer, Email-Adresse.

Eckdaten

Objektart(en) Büro- / Praxisräume, Hallen / Lager- / Produktionsräume, Gewerbegrundstücke
Kategorie(n) Miete
Etage(n) Erdgeschoss
Nutzfläche 360m²
Frei ab 01/2024
Preis 2.000 €
Nebenkosten 80 €
Nebenkosten­beschreibung

Nebenkosten wie Strom, Wasser, Internet+Telefon sind selbst zu tragen.

Nutzungs­möglichkeiten

Versandhandel, Händler, Handwerker, uvm.

Anbieter

Christoph Diekamp

Telefonnummer 01757714617
Email-Adresse christoph.diekamp@gmail.com
Makler Nein



Eindrücke und Fotos



Lage