Sie sind hier: Startseite > Bauen & Wirtschaft > Gewerbeimmobilien & Gewerbeflächen > Immobiliendatenbank
pfeil2

Meppener Straße 22

Objektbeschreibung

Büro oder Praxisfläche in innenstadtnaher Lage | Bürofläche Lingen (Ems) 

Das Ärztehaus befindet sich in der Meppener Straße 22 in Lingen und zeichnet sich durch eine gute Erreichbarkeit aus. In wenigen Minuten erreichen Sie den Lingener Marktplatz, das Bonifatius Hospital oder einen großen Nahversorger. Parkmöglichkeiten sind am Haus oder in direkter Umgebung (Wilhelmshöhe, Rewe) ausreichend vorhanden und geben Ihren Kunden die Möglichkeit, Sie gut zu erreichen.

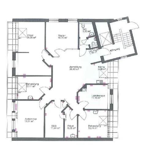
Die Fläche ist aktuell wie folgt aufgeteilt:
Wenn Sie durch die Eingangstür gehen, stehen Sie im großzügigen und hellen Empfangsbereich, von dort kommt man in die Behandlungsräume und den Wartebereich.

Die Praxisfläche bietet folgende Räumlichkeiten:
- Anmeldung 36,49 m²
- Teeküche 5,96 m²
- Wartebereich 16,76 m²
- 1 Behandlungszimmer 28,26 m²
- 2 Behandlungszimmer 12,11 m²
- 3 Behandlungszimmer 13,74 m²
- Lichttherapie 11,10 m²
- Arztzimmer 18,24 m²
- EEG 11,44 m²
- Privat 6,03 m²
- WC Patienten 3,32 m²
- WC Personal 1,19 m²
Gesamtfläche: 164,65 m²

Eckdaten

Objektart(en) Büro- / Praxisräume
Kategorie(n) Miete
Etage(n) Obergeschoss
Nutzfläche 164,65m²
Frei ab nach Absprache
Preis 1.850 € Nettomiete
Nebenkosten 200 €
Anbieter

Immobilien- und Gutachterbüro Matthias Wessmann

Herr Tino Jahnz
Neue Straße 7
49808 Lingen (Ems)

Telefonnummer 0591-9167244
Email-Adresse jahnz@immo-wessmann.de
Website www.immo-wessmann.de/
Makler Ja



Eindrücke und Fotos



Lage