Sie sind hier: Startseite > Bauen & Wirtschaft > Gewerbeimmobilien & Gewerbeflächen > Immobiliendatenbank
pfeil2

Rheiner Straße 127

Objektbeschreibung

Bürofläche mit Ausstellungsraum im Erdgeschoss

Diese Gewerbefläche befindet sich in einem Objekt, in dem die Unternehmen ADAC, VR-Agrarberatung, GTÜ Prüfstelle Heinemann und "The Fuchs" - Grillrestaurant ansässig sind. Die hier angebotenen Räumlichkeiten grenzen direkt an die Geschäftsräume des ADAC.

In unmittelbarer Nachbarschaft zum Objekt befinden sich die Volklbank, Famila, Obi und Möbel Berning. Direkt gegenüber des Gebäudes befindet sich "Radel Bluschke" und ein Reitsportgeschäft.

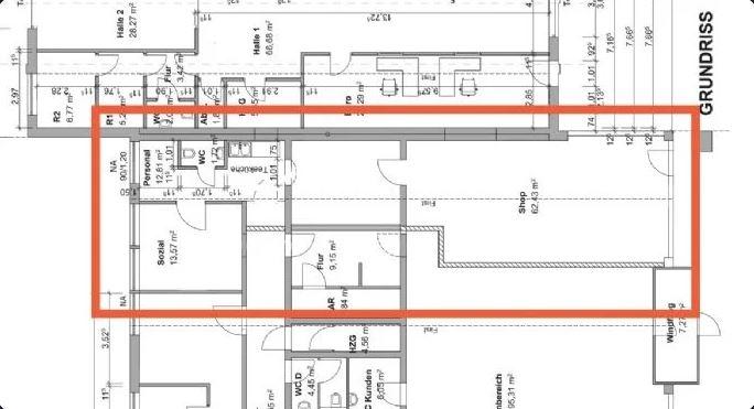
Raumaufteilung:
Diese ca. 90 m² große Fläche wurde Anfang 2021 umfassend saniert und teilt sich wie folgt auf:
Der größte, zur Straße ausgerichtete Raum, ist durch die bodentiefen Fenster hell und lichtdurchflutet. Im hinteren Bereich befindet sich ein weiterer heller Büroraum und ein WC. Durch den Notausgang kann das Gebäude auch nach hinten, auf die Gebäuderückseite, verlassen werden..

Die Rheiner Straße ist eine stark frequentierte Ein- bzw. Ausfallstraße in Lingen, die auch durch die hier angesiedelten Einkaufsmöglichkeiten interessant für mögliche Geschäftsideen ist.
Vor dem und auch seitlich des Gebäudes stehen ausreichend Parkplätze zur Verfügung.
Das Objekt kann durch den öffentlichen Nahverkehr direkt erreicht werden. Eine Bushaltestelle befindet sich unmittelbar gegenüber.


Eckdaten

Objektart(en) Büro- / Praxisräume
Kategorie(n) Miete
Etage(n) Erdgeschoss
Nutzfläche 90,50m²
Frei ab sofort
Preis auf Anfrage
Nutzungs­möglichkeiten

Verkaufs- oder Bürofläche

Anbieter

Timmer Immobilien GmbH & Co. KG

Herr Torsten Timmer
Meppener Str. 104
49808 Lingen (Ems)

Telefonnummer 0591 321 796-0
Email-Adresse info@timmer.immo
Website www.timmer.immo
Makler Nein



Eindrücke und Fotos



Lage